Badminton atau Bulu Tangkis termasuk olahraga yang sangat digemari di
dunia, termasuk Indonesia. Mulai dari anak kecil hingga orang tua, di
desa hingga di kota, semua melakukan olahraga Badminton. Peraturan
badminton telah mengalami beberapa perubahan pertauran. Dan di bawah ini adalah ulasan beberapa peraturan pertandingan.
Bulu tangkis (sering disingkat bultang) atau badminton adalah suatu olahraga raket yang dimainkan oleh dua orang (untuk tunggal) atau dua pasangan (untuk ganda) yang saling berlawanan.
Mirip dengan tenis, bulu tangkis bertujuan memukul bola permainan ("kok" atau "shuttlecock") melewati jaring agar jatuh di bidang permainan lawan yang sudah ditentukan dan berusaha mencegah lawan melakukan hal yang sama.
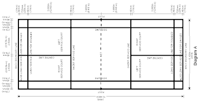
LAPANGAN
Lapangan harus
berbentuk persegi panjang dan terdapat garis-garis sebagai batas untuk
mendapatkan poin pada saat pertandingan. Untuk lebih jelasnya lihatlah
gambar di bawah ini.
![]() |
| Ukuran Lapangan Bulu Tangkis |
PARTAI
Ada lima partai yang biasa dimainkan dalam bulu tangkis, yaitu:
1. Tunggal putra
2. Tunggal putri
3. Ganda putra
4. Ganda putri
5. Ganda campuran
Ada lima partai yang biasa dimainkan dalam bulu tangkis, yaitu:
1. Tunggal putra
2. Tunggal putri
3. Ganda putra
4. Ganda putri
5. Ganda campuran
Untuk Partai Tunggal :
• Panjang= 11,88 meter
• Lebar = 5,18 meter
• Luas = 61,5384 meter persegi
• Jarak Net Ke Garis Service = 1,98 meter
• Jarak Garis Service ke Sisi Lapangan Luar = 3,96 meter
Utuk Partai Ganda :
• Panjang = 13,40 meter
• Lebar = 6,10 meter
• Luas = 81,74 meter persegi
• Jarak Garis Service ke Sisi Lapangan Luar = 4,72 meter
NET
Net harus terbuat dari tali serat warna gelap dengan ketebalan jaring tidak kurang dari 15mm (5/8 inci) dan tidak lebih dari 20mm (3/4 inci). Net harus terpasang dengan kencang karena sangat menentukan jika pemain sedang malakukan neting. Untuk tinggi tiang net yaitu :
• Tinggi Tiang Net = 1,55 meter
• Tinggi Atas Net = 1,52 meter
• Jarak Net Ke Garis Service = 1,98 meter
SERVIS
Servis dilakukan dari satu sisi lapangan (kiri atau kanan) menyilang menyeberangi jaring ke area lawan. Partai tunggal dan ganda memiliki area servis yang berbeda seperti yang diilustrasikan pada gambar. Bila kok jatuh di luar area tersebut maka kok dinyatakan "keluar" dan poin untuk penerima servis.
Posisi kiri atau kanan tempat servis dilakukan ditentukan dari jumlah poin yang telah dikumpulkan oleh pemain yang akan melakukan servis. Posisi kanan untuk jumlah poin genap dan posisi kiri untuk jumlah poin ganjil. Servis dari posisi kanan juga dilakukan saat jumlah poin masih nol.
Pada set pertama pemain/pasangan yang melakukan servis untuk pertama kali ditentukan dengan undian, sedangkan untuk set berikutnya dilakukan oleh pemenang dari set sebelumnya.
Untuk partai ganda, beberapa peraturan berbeda diterapkan untuk perhitungan poin menggunakan sistem pindah bola dan sistem reli poin.
Sistem pindah bola
- Sebelum pertandingan dimulai, harus ditentukan salah seorang pemain dari tiap-tiap pasangan sebagai "orang pertama". Pilihan ini berlaku untuk setiap set yang dimainkan.
- Jumlah poin genap atau ganjil menentukan posisi "orang pertama" saat melakukan servis.
- Setiap pasangan mempunyai dua kali kesempatan servis (masing-masing untuk tiap pemain) sebelum pindah bola, kecuali servis pertama pada tiap-tiap awal set tidak mendapat kesempatan kedua.
- Saat pindah bola, servis pertama selalu dilakukan oleh pemain yang berada di sebelah kanan, bukan oleh "orang pertama".
- Sistem reli poin
- Setiap pasangan hanya mendapat satu kali kesempatan servis, tidak ada servis kedua.
- Servis dilakukan oleh pemain yang posisinya sesuai dengan poin yang telah diraih oleh pasangan tersebut.
- Pemain yang sama akan terus melakukan servis sampai poin berikutnya diraih oleh lawan.
Sejak Mei 2006, pada kejuaraan resmi seluruh partai menggunakan sistem perhitungan 3x21 reli poin. Pemenang adalah pemain/pasangan yang telah memenangkan dua set.
Peraturan Pertandingan Bulutangkis:
- Pertandingan bulutangkis terdiri dari 3 partai (ganda putra, ganda putri dan ganda campuran).
- Shuttle cock yang digunakan adalah Saporete Hijau ukuran 77 sesuai standar PBSI.
- Jumlah pemain yang didaftarkan maximal 10 orang & minimal 6 orang.
- Pemain dalam babak penyisihan, semi final & final boleh diganti- ganti susunannya dalam tiap pertandingan, asalkan jumlah dalam satu team tetap 6 orang dan namanya ada dalam pemain yang didaftarkan (point 3).
- Pemain tidak boleh main rangkap (2 x dalam 1 pertandingan). Jumlah pemain saat bertanding harus 6 orang (3 orang putra + 3 orang putri).
- Bila pemain inti cedera pada saat bertanding, tidak boleh digantikan oleh pemain cadangan, bila tidak bisa meneruskan pertandingan dianggap kalah.
- Pertandingan dipimpin oleh satu orang wasit utama, dibantu 4 orang hakim garis dari team lain diluar dari team yang sedang bertanding.
- Servis diatas pinggang dianggap Foult.
- Pertandingan dibagi menjadi 2 babak
Babak Penyisihan
1. Menggunakan sistem gugur.
2. Tiap partai menggunakan sistem pindah bola, yang mencapai angka 30 lebih dulu dianggap
3. Setelah ada yang mencapai angka 15 dilakukan pergantian tempat.
4. Tidak ada waktu istirahat.
5. Tidak ada DEUCE.
Babak Final
1. Menggunakan sistem rally point dengan score total 30 (tanpa deuce)
2. Setelah ada yang mencapai angka 15 dilakukan pergantian tempat.
3. Tidak ada waktu istirahat.
Sumber :
http://organisasi.org
http://mvd09.blogspot.com
http://ebadminton.stores.yahoo.ne
wikipedia

Tidak ada komentar:
Posting Komentar
Terimkasih untuk sumbang saranya...